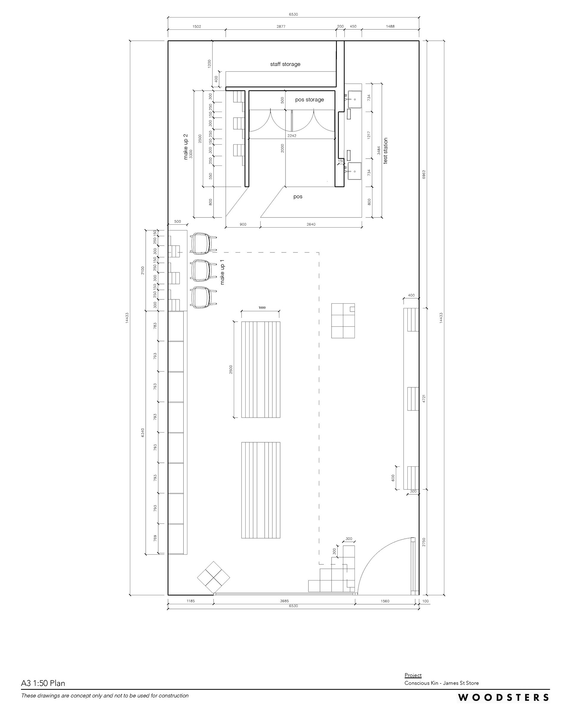
Conscious Kin
Retail environment developed for Conscious Kin, designed to highlight natural materials and a calm, tactile atmosphere. The project focused on spatial flow, display systems, and material cohesion to create an intimate customer experience.
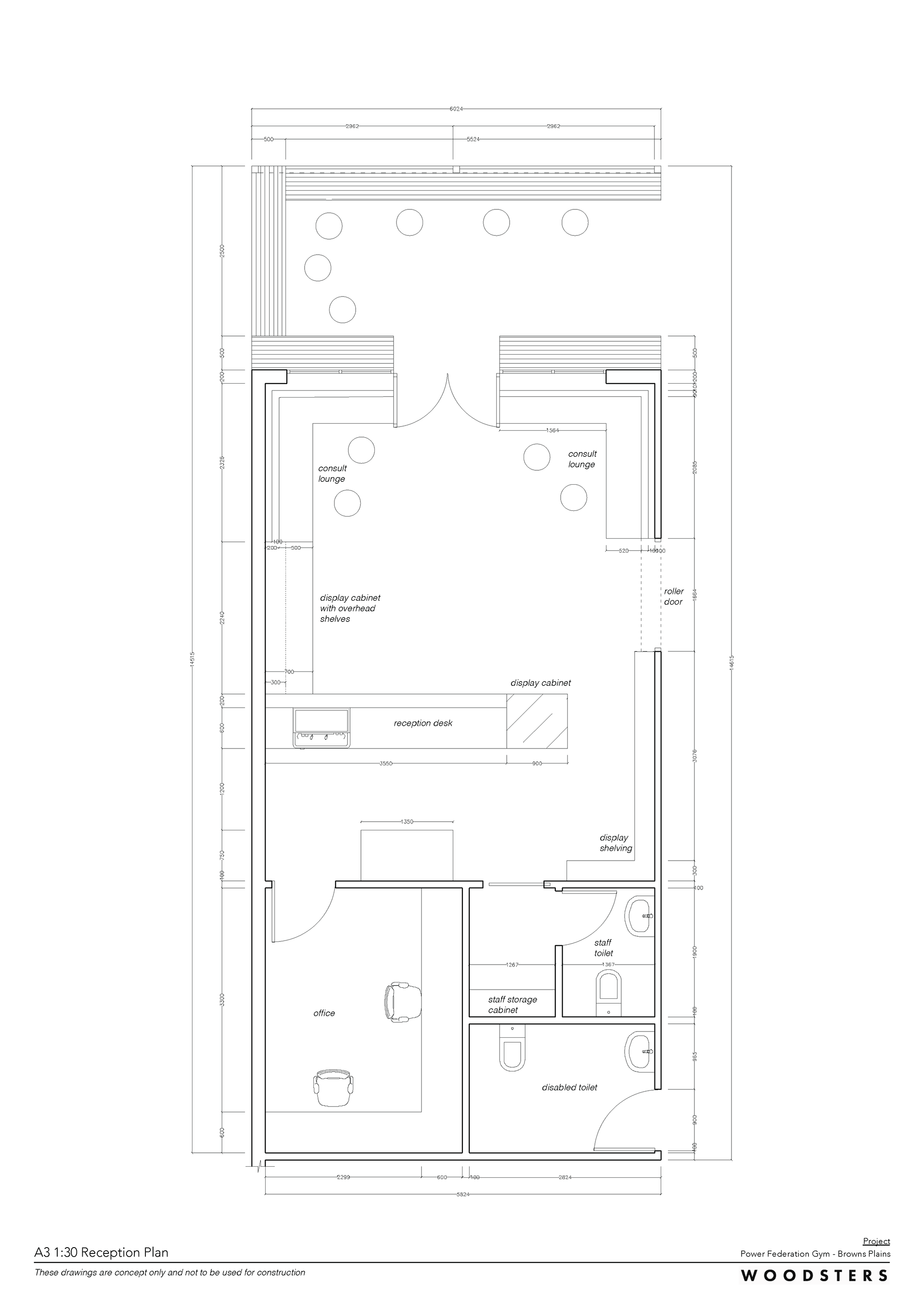
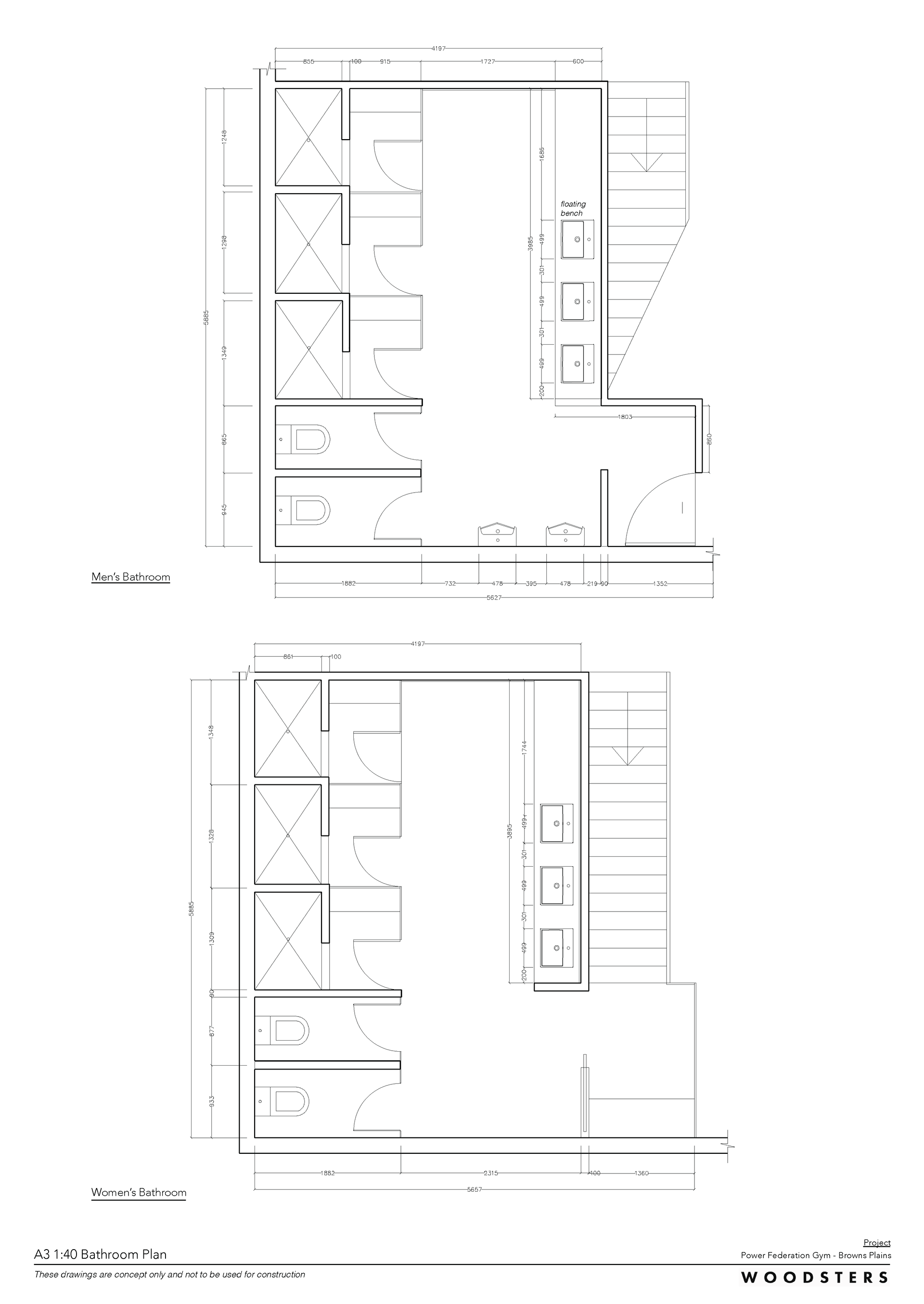
Power Federation
Commercial fitout concept for a large-format gym in Browns Plains, Queensland. The design covers reception, consultation lounges, point of sale, bathrooms, staff facilities, and a mezzanine level. Documentation includes dimensioned plans, bathroom layouts, and perspectives across all key areas of the space.
29 Merivale St
Co-working and function space concept developed for an existing warehouse in South Brisbane. Shipping containers were used to create individual offices and breakout zones within the existing structure, with a mezzanine level added to maximize the available volume. Documentation covers ground floor and mezzanine plans, elevations, and perspectives.
Bathroom + Cabinetry
residential cabinetry concept covering a full bathroom and built-in bedroom wardrobe. Documentation includes a dimensioned plan with section keys, four bathroom elevations, and a perspective render showing the finished space.
Back to Top