Conscious Kin
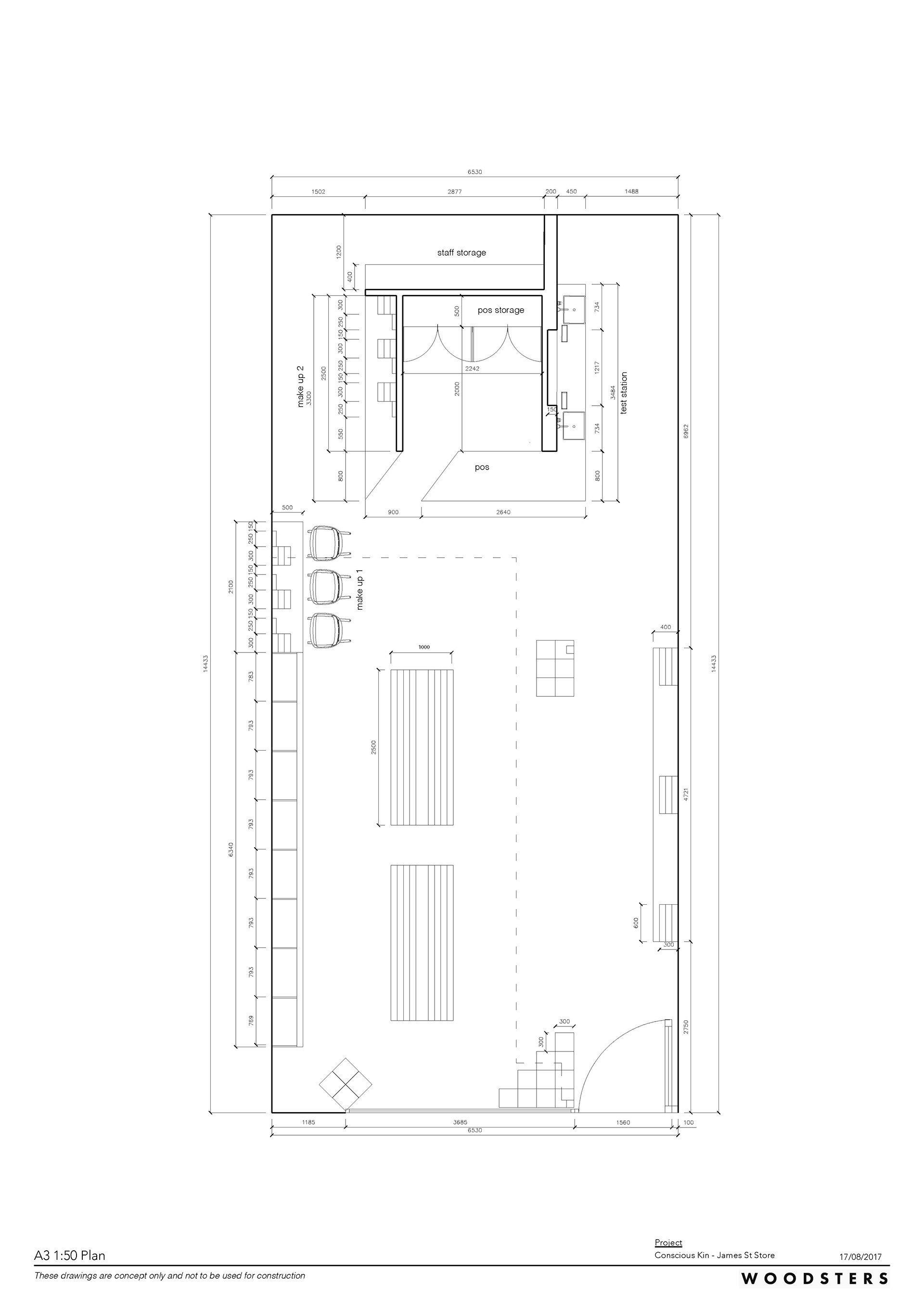
I partnered with Woodsters Constructions (Brisbane, Australia) to design a transformative skincare retail fit-out. The brief called for a spa-inspired shopping environment balanced with abundant natural light and compelling street presence. My contributions included custom-designed product display systems that elegantly showcased the merchandise while reinforcing brand identity. Central to the space, I developed versatile modular tables that could be reconfigured to accommodate special events, allowing the client to maximize their retail footprint through multiple use cases.